Meridian Architecture Ltd.

Creating spaces to enhance lives for a better world

Meridian Architecture Ltd.

As creators of the built environment, Meridian takes pride in offering innovative architectural solutions on a wide spectrum of projects working with the public and private sectors from the feasibility stage to practical completion. Our considerable breadth of experience has been driven by strong creativity and technical expertise, which are key to our design services.

We believe that buildings are about people, and the internal and external environments we create through architectural design can enrich the experiences and lives of building users which is central to our philosophy. Meridian creates great spaces, to enhance lives for a better world.

As BIM specialists, Meridian are fully Revit proficient which allows us to work collaboratively with structural engineers and services engineers in producing quality 3D designs, which supports our work within the public sector. Through a spirit of focused sustainable design and best practice approach, we endeavor to incorporate renewable energy systems within our architectural designs where it is feasible for our clients.

Architectural Services

Meridian Architecture can provide the following professional services to help you realise your inspired design, obtain Planning and Building Regulations approval for your new-build, extension or alteration and refurbishment of your property. We can assist with the following:

  • Project Design and Development
    Whether you know exactly what you want or are looking for ideas and inspiration we are here to help. Our Feasibility Studies will consider the options available to fulfil your needs and requirements and help you to balance the costs against the lifetime benefits.
  • Local Authority Planning Permission
    We will work with you to produce a comprehensive application to be considered by the Local Authority Planning Department.
  • Building Regulations Approval
    We can produce the technical drawings required to obtain Full Plan Permission or to assist your builder if they prefer to proceed on a Building Notice.
  • Obtaining Quotations to Complete the Works
    We can produce the required tender documentation for you to obtain competitive quotations from local builders, to ensure that you get a fair price with a well-defined scope of service.

What Our Clients Say

J.H.

"Great team!!! We are delighted to work with David and his partner James. They are practical to work with and a skilful team."

V.W.

"I thoroughly recommend Meridian. David has been thorough, reliable, responsive and very easy to communicate with. He has come up with great ideas (as well as listening to mine) and offered good advice when needed. I can't wait to move in to my renovated house." - "Meridian came up with some really good ideas for how to use the space and incorporated all of my requests into the design. They were really friendly, great to deal with and good at communicating about the process. I felt they were conscientious and knowledgeable and I have no hesitation in recommending them."

K.H.

"Working from an initial concept, Meridian Architecture developed the design and produced planning drawings and made the planning application for my full-house extension and renovation. Once approved they completed a comprehensive set of construction drawings and specification suitable for building regulations submission and approval. Meridian provided a professional and personal service enabling me to review and change drawings and details until I was fully satisfied."

W.A.

"Brilliant service at agreed price."

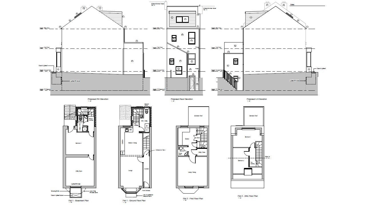
Sample Drawing Gallery

© Copyright 2020 Meridian Architecture - All Rights Reserved

This website was built with Mobirise theme